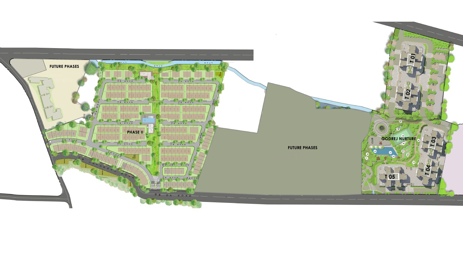
MASTER PLANNING
Our projects include present and future goals and the probability of long term changes. We specialize in architectural Master Planning for Commercial buildings, Institutional buildings, IT parks, Residential schemes and Business parks.


